

Начав строительство дачного дома я не планировал строить погреб на участке. Думал, что овощи и фрукты буду хранить в кладовке в доме. Но прожил год в доме понял, что данный способ хранения продуктов не подходит. Овощи и фрукты хранить данным способом получалось не больше 1 месяца,после чего они вяли и засыхали. В общем, принял решение строить маленький погреб 2 на 3 м, площадью 6 квадратных метров. Хранить в погребе планирую овощи-фрукты и консервацию, рассчитан на 4 человек.
Проект маленького погреба 2х3 м


Для того чтобы рассчитать строительные материалы сделал проект погреба. Из-за того что проезд техники к месту строительства погреба затруднен, все работы будут выполняться вручную.
Материал из которого будут строиться стены и перекрытия — это монолитный железобетон марки 200 (В15). Армировать конструкции буду арматурой диаметром 10 мм. Толщина стен и перекрытия будет 15 см.
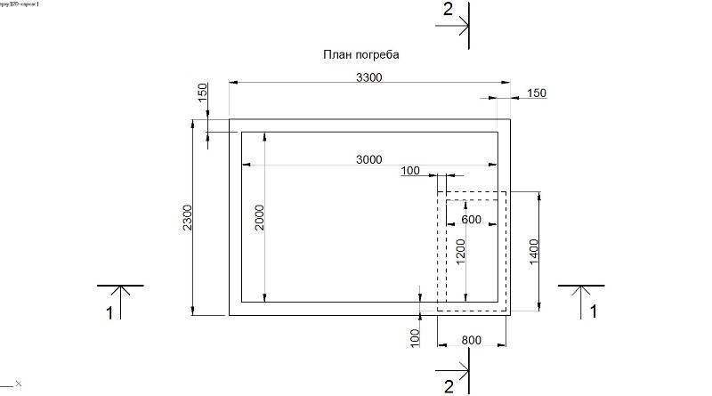
Размеры погреба в плане будут 3 на 2 м, а с учётом толщины стен 3,3 на 2,3 м. Конструкторы будет полностью загублена под землю на глубину 35 см. Высота внутреннего помещения от пола до потолка 1,8 м.
Вход в погреб сделаю через люк в перекрытии размером 1,2 м на 0,6 м. Лестница будет сделана из металлического профиля.
По наружи стены и перекрытие буду гидроизолировать с помощью строительной полиэтиленовой пленки. Пол будет без гидроизоляции, это нужно для того чтобы в погребе было повышенная влажность около 90%. Что позволит долго хранить овощи и фрукты.
Перекрытия и часть стен на глубину промерзания утеплю экструдированным пенополистиролом толщиной 50 мм.
Расчет материалов для строительства погреба
1 | Бетон М200 | 4,2 м3 |
2 | Арматура D10мм | 300 м |
3 | Вязальная проволока | 1 кг |
4 | Пленка для гидроизоляции | 27 м |
Приобретение квартиры – достаточно серьезная задача. Подходить к ней следует ответственно. При этом купить квартиры в Черногорске несложно, ведь на вторичном рынке