Проект погреба 2х3 м (6м2)

Проект погреба 2х3 м (6м2)

Начав строительство дачного дома я не планировал строить погреб на участке. Думал, что овощи и фрукты буду хранить в кладовке в доме. Но прожил год в доме понял, что данный способ хранения продуктов не подходит. Овощи и фрукты хранить данным способом получалось не больше 1 месяца,после чего они вяли и засыхали. В общем, принял решение строить маленький погреб 2 на 3 м, площадью 6 квадратных метров. Хранить в погребе планирую овощи-фрукты и консервацию, рассчитан на 4 человек.

Проект маленького погреба 2х3 м

Проект маленького погреба 2х3 м
Проект погреба

Для того чтобы рассчитать строительные материалы сделал проект погреба. Из-за того что проезд техники к месту строительства погреба затруднен, все работы будут выполняться вручную.

Материал из которого будут строиться стены и перекрытия — это монолитный железобетон марки 200 (В15). Армировать конструкции буду арматурой диаметром 10 мм. Толщина стен и перекрытия будет 15 см.

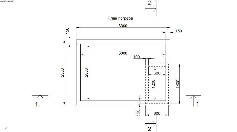
Размеры погреба в плане будут 3 на 2 м, а с учётом толщины стен 3,3 на 2,3 м. Конструкторы будет полностью загублена под землю на глубину 35 см. Высота внутреннего помещения от пола до потолка 1,8 м.

Вход в погреб сделаю через люк в перекрытии размером 1,2 м на 0,6 м. Лестница будет сделана из металлического профиля.

По наружи стены и перекрытие буду гидроизолировать с помощью строительной полиэтиленовой пленки. Пол будет без гидроизоляции, это нужно для того чтобы в погребе было повышенная влажность около 90%. Что позволит долго хранить овощи и фрукты.

Перекрытия и часть стен на глубину промерзания утеплю экструдированным пенополистиролом толщиной 50 мм.

Расчет материалов для строительства погреба 

1 Бетон М200 4,2 м3
2 Арматура D10мм 300 м
3 Вязальная проволока 1 кг
4 Пленка для гидроизоляции 27 м

Приобретение квартиры – достаточно серьезная задача. Подходить к ней следует ответственно. При этом купить квартиры в Черногорске несложно, ведь на вторичном рынке

Ссылка на основную публикацию